Prime Series / 1466H32P01


{message}
Prime Series / 1466H32P01
Built By:
Champion Homes
3
Bedroom
2
Bath
880
sqft
Single-Section
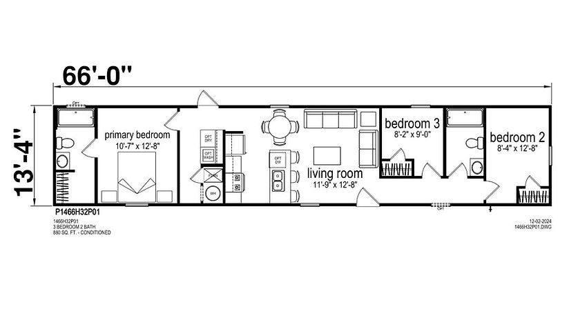
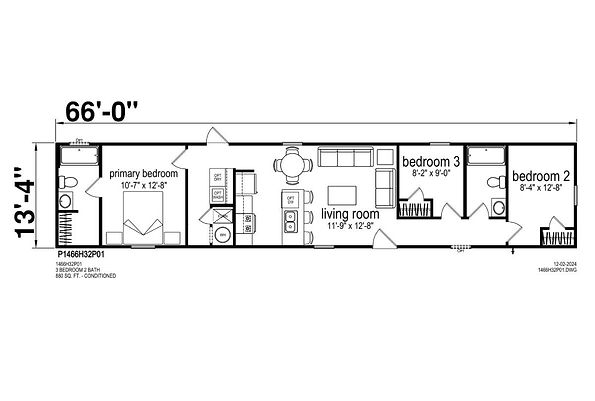
The Prime Series / 1466H32P01 built by Champion Homes offers an efficient 3-bedroom, 2-bathroom layout across 880 sq. ft., featuring a welcoming living room centered between the primary suite and two secondary bedrooms. The kitchen and dining area provide practical flow, with the utility space conveniently nearby. With its smart use of space and comfortable design, The 1466H32P01 delivers a well-balanced home that feels both functional and inviting.
Construction
Additional Specs: FRAME - PLANT MADE - AMERICAN STEEL - 99-1/2" SPACING / ENERGY STAR / DOWNFLOW METAL DUCT - PLANT MADE
Floor Decking: FLOORS - 2x6 16"O.C. - 19/32" OSB T&G
Interior Wall On Center: 16" O.C.
Interior Wall Studs: 2x4 SIDEWALLS
Side Wall Height: 8' SIDEWALLS - FLAT CEILINGS
Roof Decking: ROOF DECKING - 7/16" OSB
Insulation (Floors): R22
Insulation (Walls): R11
Insulation (Roof): R22
Eaves: 6" OVERHANG EAVES - METAL VENTED
Shutters: VINYL SHUTTERS - FDS ONLY
Request a Price Quote
Floorplan

