Premier / The Iberville 1676H32001


{message}
Premier / The Iberville 1676H32001
Built By:
Champion Homes
3
Bedroom
2
Bath
1153
sqft
Single-Section
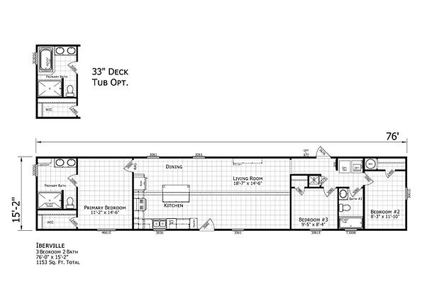
The Premier / The Iberville built by Champion Homes offers a spacious 1153 square feet of living area, featuring 3 bedrooms and 2 bathrooms. Designed for comfort and efficiency, this manufactured home provides an ideal balance of style and functionality. With a well-planned layout and modern amenities, The Iberville is perfect for families seeking a high-quality, stylish living space. Discover the charm and practicality of The Iberville today.
Construction
Additional Specs: Windzone 1 / 12" 1-Beam and 10" Hitch / Kraft lnsulation at Ext T&T Walls / Rugged Metal Roof / Shutters FDS/Hitch
Exterior Wall Studs: 2X4 Ext. Walls
Floor Decking: OSB Floor Decking
Floor Joists: 2X8 Floor Joists
Interior Wall Studs: 2x3 lnterior Walls
Roof Load: 20# Roof Load
Side Wall Height: 8' Ceiling W/ Vault (Model Specific)
Insulation (Floors): R-11 Floor Insulation
Insulation (Walls): R-11 lnsulation
Insulation (Roof): R-22 Roof Insulation
Request a Price Quote
Floorplan














